![]() |
|
ATG Conveyor Components Always Delivers Quality
ATG Conveyor Components offer the complete conveying system solution |
|
ATG Conveyor Components was originally formed to consolidate global sourcing specialists, ATG’s conveyor systems division. Over the last few years, it has seen unprecedented growth, which has been down to a number of factors including the consistent supply of high quality product supported by a highly knowledgeable technical team and exemplary aftersales service.
With an extensive range, ATG Conveyors Components supplies rollers, field conveyors, disc return rollers, conveyor drums, impact rollers, power transmission, unit handling components and transoms. We also supply ancillary items such as cages, belting and fixings to give our customers the complete conveying solution whatever the application. ![]() STANDARD ROLLERS All ATG rollers are designed to operate in the most challenging of environments, in most cases running for 24 hours a day, where efficiency and long service life are critical.
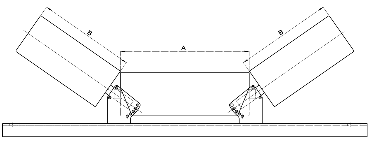
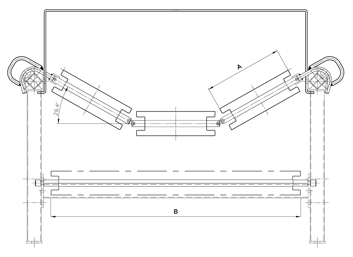
With continued quality inspections carried out throughout production all roller bearings have a minimum 40,000 working hour warranty. The table below showcases our standard size rollers. Bespoke options are also available upon request with a variety of different diameters and tube thicknesses. ![]() ADJUSTABLE TROUGH SETS AND RETURN ROLLERS ATG Conveyor Components supply a wide range of adjustable trough sets and return rollers for a variety of applications for the mining, material processing, waste recycling and crushing & screening industries. Below follows a selection of these items with technical and dimensional detail on each. VARI ANGLE – 3 ROLL TRANSOM Designed for light to medium applications our Vari Angle Sets feature an adjustable roller which allows the wing idler to be set at 20°, 30°, 40°, 50° and 60°. This low rolling resistance design is compatible with one of the most universally used systems on the market and is available with 102mm and 127mm diameter rollers. Rollers can be manufactured with either 20mm or 25mm bearings as standard. All transom frames can be supplied either painted black, galvanised or self-colour to suit customers’ requirements. ![]() ![]() VARI ANGLE – RETURN ROLLERS ATG Conveyor Components offer a wide range of Vari Angle Return Rollers ranging from 63.5mm up to 168mm diameter to suit customers’ individual requirements and applications. We can cater for all belt widths. ![]() ![]() VARI ANGLE – DISC RETURN ROLLERS Disc Return Rollers are mainly used on conveyor systems where wet or sticky materials can build up on standard return rollers. The ring design minimise detritus collecting on the roller prolonging product life and increasing system efficiency. ![]() ![]() FIXED – 3 ROLL TROUGHING ROLLER SET Designed to be used in more heavy-duty applications than the adjustable sets these 3 Roll Troughing Sets have a fixed angle. ATG Conveyor Components can cater for all roller diameters and belt widths to suit customers’ individual requirements and applications. All transom frames can be supplied either painted black, galvanised or self- colour as per customers’ specifications. ![]() ![]() FIXED RETURN ROLLER For use in conjunction with the Fixed Troughing Sets these heavy-duty Fixed Return Rollers come in 102mm & 127mm diameters. Rollers are supplied with a powder coated finish. ![]() ![]() SUSPENDED SETS Designed for ease of installation our range of Suspended Sets are used primarily in field conveyor systems. With excellent low rolling resistance, good lateral and ground clearance this versatile design is supplied with 102mm or 127mm rollers and is compatible with belt widths of 600mm to 900mm. ![]() ![]() Whether you’re looking for bespoke parts or a large volume of identical product ATG Conveyor Components will work with you to feed into your installation timetables. We can also work to your scheduled maintenance programmes to ensure downtime is kept to an absolute minimum of any plant or conveying systems. For more information please get in touch with Global Project Manager, Tony Hooker, or Business Development Manager, Gillian Miller. You can also get in touch by filling out our Contact Form or giving us a call on +44 (0) 330 041 7076. |
















